Tavarnelle Villa indipendente

Riferimento: T47

Contratto: vendita

Tipologia: villa

Superficie (mq): 360

Zona: Sambuca

Località: Sambuca

Prezzo: € 470.000

Numero vani: 7

Camere: 3

Stato immobile: Buone Condizioni

Bagni: 3

Classe energetica: G

IPE: 175 kWh/m2

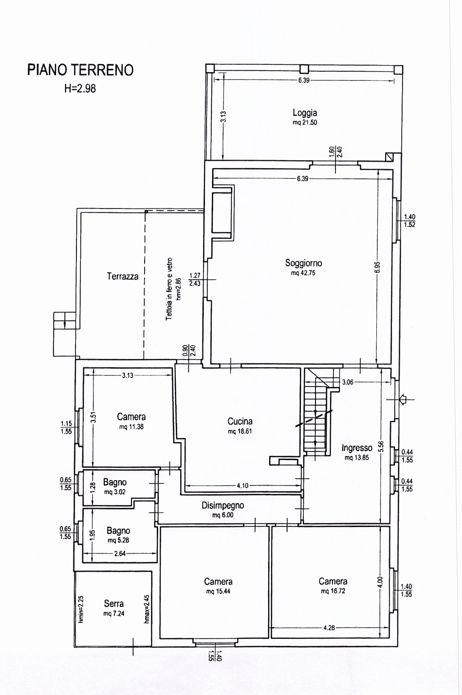
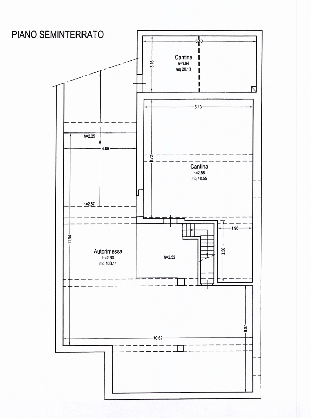
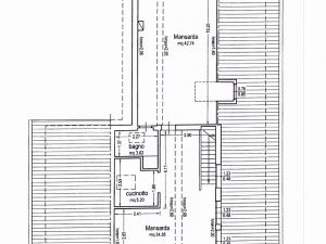
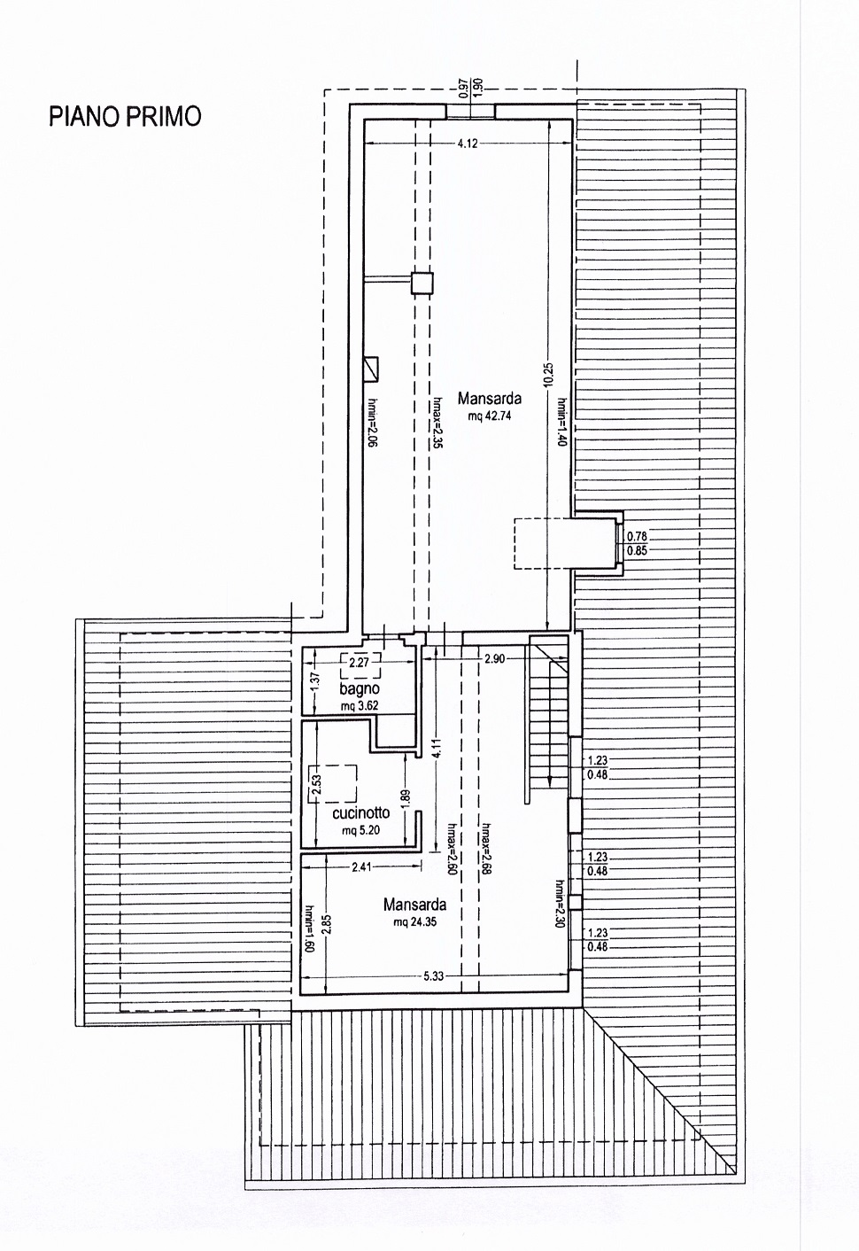
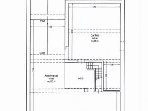
In località Sambuca in Val di Pesa, proponiamo villa indipendente circondata da giardino di proprietà di 650 mq accessibile con passo carrabile. L'immobile è diviso internamente in 5 vani al piano terra di circa 140 mq calpestabili oltre a mansarda di ulteriori 70 mq sfruttabili con ottima altezza e taverna/box auto al piano seminterrato di oltre 150 mq. Al piano terra l'appartamento è composto da ingresso, soggiorno di 42 mq con porta finestra che si apre sul giardino e un'altra porta finestra che immette su una terrazza abitabile, grande cucina con accesso alla terrazza abitabile, disimpegno che porta alla zona notte dove si trovano 2 camere matrimoniali e una camera media, doppi servizi finestrati. Attraverso una scala interna si accede al piano sottotetto dove si trova un terzo servizio, un cucinotto e due ampie stanze ad uso mansarda. Il tetto è stato rifatto recentemente e coibentato per garantire un efficace isolamento termico. Dal piano terra attraverso una scala si può accedere anche al piano seminterrato dove attualmente si trovano un box auto e due grandi cantine, per l'ampia metratura è possibile creare una taverna o locale palestra, laboratorio ecc.
La proprietà è circondata da giardino esclusivo che consente di passare momenti di relax al fresco dell'ombra degli alberi e dove è possibile creare un piscina.
L'immobile pur essendo abitabile e mantenuto in ottimo stato, necessita di alcuni lavori di ammodernamento.

Richiedi informazioni su questo immobile

Vedi Privacy policy